Cool, Boy. REAL COOL.
With a flair for creativity and a commitment to passive practices, CoolHouse redefines modern living, embracing a playful spirit that resonates with design professionals and everyday homeowners alike.
Photography Jamie Corbel
In a world where architectural innovation is celebrated, CoolHouse by Jessop Architects is a masterclass in blending creativity with sustainability, a true celebration of thoughtful design. Architect Darren Jessop and his team have established a philosophy that champions living beautifully and responsibly. Their mission is clear: create homes that inspire, leaving a light footprint on the environment. With each home, they encourage the “living cool” ethos—a lifestyle that’s refreshing, sustainable, and utterly stylish.
An extra-large DOME PENDANT by Monmouth Glass Studio, custom-made to order, adds a striking focal point to the space.
The journey to CoolHouse began with Darren’s groundbreaking project: Australasia’s first certified Passive House. This experience fuelled his passion for energy efficient design, and the CoolHouse collection takes this vision even further. Built to the rigorous Passivhaus standard and inspired by modernist and Palm Springs vernacular architecture, each CoolHouse home delivers exceptional thermal performance through airtight construction. This design eliminates the need for active heating or cooling, ensuring a consistently comfortable indoor temperature year-round.
As the demand for smaller, more sustainable homes grows in New Zealand, CoolHouse meets the moment with a range of designs that are compact, functional, and exquisite.
With the option of having the CoolHouse prefabricated in the factory, delivered across New Zealand, weather- related delays commonly associated with onsite builds can also be effectively avoided. Each model, from the minimalist ‘Mini’ CoolHouse at 25m2 to the family-friendly ‘Master’ CoolHouse at 200m2, is crafted to maximize comfort, energy efficiency, and style—all while keeping environmental impact to a minimum.
These homes are entirely airtight, allowing them to stay warm in winter and cool in summer without traditional heating or cooling, an achievement that lies at the heart of the Passivhaus standard.
Architectural sliders introduce a dynamic blend of light and privacy, giving the owner the freedom to lock up and leave with ease.
The CoolHouse mission is clear: to create homes that inspire, leaving a light footprint on the environment. With each home, they encourage the “living cool” ethos—a lifestyle that’s refreshing, sustainable, and utterly stylish.
The sleek ARRITAL kitchen by Matisse features a sophisticated FENIX NTM benchtop and cabinetry in Nero Ingo. Fisher & Paykel integrated appliances offer seamless functionality. The Uno gooseneck mixer from Elementi, and Breville CREATISTA PLUS coffee machine complete this elegant space.
The living room features the inviting TUFTY TIME sofa and HUSK armchair, both from Matisse, complemented by MUFFIN floor lamps from ECC. The ADARA sideboard by Momocca (Spain) adds sleek storage, while the 55” Samsung QLED 4K TV blends seamlessly into the space. Soft curtains in “Chalk” by Lahood and the MACKENZIE rug from A&C Homestore complete the sophisticated ambiance.
A standout feature of CoolHouse is its modular flexibility. Each design is adaptable, allowing homeowners to start with a compact studio and expand as needed, or to combine models for a tailored fit.
Darren explains, “Each CoolHouse design was created to be modular. For example, you could start with the ‘Mini’ and later add the ‘Mint,’ blending spaces to meet changing needs without sacrificing a low-impact footprint.” This modular approach offers a smart, adaptable solution for those looking to create spaces that can evolve with their lives.
‘Mint’ CoolHouse Plan
Though passive houses can be constructed in any size, COOLHOUSE’s smaller models emphasize compact, eco-friendly living. Each design in the COOLHOUSE collection is crafted to work independently or in combination with others—offering a modular approach that allows owners to expand their space as needed over time.
Beyond functionality, CoolHouse captures the essence of streamlined, modern design, balancing a clean aesthetic with the warmth of carefully chosen materials. The design philosophy prioritizes natural light, flowing indoor-outdoor spaces, and thoughtful layouts that maximize every inch of space.
The refined simplicity of each home keeps the focus on sustainability while delivering a look that’s fresh and timeless—a concept that fits seamlessly into New Zealand’s stunning landscapes. Customization is key to the CoolHouse experience, and every design can be tailored to reflect a homeowner’s unique vision. From layout adjustments to personalized finishes, CoolHouse is a canvas that adapts to different tastes, creating homes that are both functional and deeply personal.
Principal Architect, Darren Jessop of Jessop Architects
“As we developed COOLHOUSE, we made modularity a core feature. For instance, you could start with the ‘Mini’ and later add the ‘Crib’ for a bit more space, giving you flexible options to meet changing needs. Each design maintains a significantly smaller footprint than traditional homes.” – Darren Jessop
The bathroom features elegant PETRA LEGERE porcelain tiles from Artedomus and large RHOMBUS white gloss tiles from Tile Space. The vanity, crafted by DBJ Cabinetry, includes a CAESARSTONE PURE WHITE benchtop from LINEASTONE, with tapware by Zucchetti from Robertsons. The guest bathroom showcases a DOME pendant by Monmouth Glass Studio, adding a refined focal point. The LINFA wall-hung toilet and a custom shower partition complete the space.
“The CoolHouse process isn’t just about the final result; it’s about the journey. Working closely with our clients allows us to create spaces that feel like an extension of who they are,” adds Darren. In the Snells Beach home featured here, built from the ‘Crib’ plan, homeowner Hilary Durant brought her sophisticated taste to the interiors, sourcing furniture from reputable brands such as Matisse and ECC to create an atmosphere of timeless elegance.
Every corner is thoughtfully curated to reflect a lifestyle that values both beauty and practicality.
Hilary reflects on the design process, which she enjoyed undertaking: “I handled all of the interior design from top to bottom, including the complete fit-out of the bathrooms and kitchen. We absolutely love our finished home. The design makes the most of what is actually a rather challenging site shape, creating a space that’s cozy in winter, cool in summer, and feels wonderfully connected to the activity down by the beach. At the same time, it allows for privacy whenever we want a quiet moment.”
“It was an absolute pleasure working with Darren and the CoolHouse team, as well as Will and his team from The Construction Company. Their professionalism was outstanding, and the project was completed on time and on budget. If given the chance, I would happily repeat the process with the same team.”
The hide-and-seekstyle outdoor barbecue and fireplace pavilion adds a playful touch to this functional space, and a cool nook in which to cocoon away from the sun.
“We’re not just building homes; we’re changing how people think about space, sustainability, and living well,” Darren notes.
With New Zealand’s new allowances for secondary dwellings, CoolHouse has introduced the ‘Crib CoolHouse’ design, a compact option for sections with an existing home—a testament to Jessop Architects’ commitment to creating adaptable, eco-conscious living solutions.
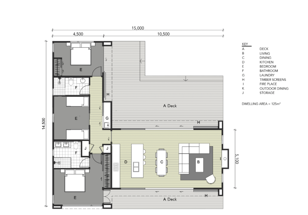
‘Crib’ CoolHouse Plan
CoolHouse by Jessop Architects is more than just a collection of homes; it’s a movement towards a future where beauty, sustainability, and comfort exist in perfect harmony. Each design is a nod to the elegance of thoughtful living, a vision for a greener, more intentional way of life.
Discover the CoolHouse Collection online.
Related Posts
The Essence of Molteni&C.
Molteni&C, founded in Giussano in the 1930s by Angelo Molteni, has bec
Lightly Weighted
Grey Lynn is known for its vibrant streetscapes and proximity to the h
A Sense of Poetry in La Trapa
Nestled at the secluded edge of Mallorca’s western coastline, La Tra
A Canvas of Fine Finishes
Tucked on a leafy avenue in Remuera, this unassuming 1940s residence h
Embracing Serenity
When upgrading a cherished holiday retreat, the owners—who have enjo

